NY BATHROOM

New York City

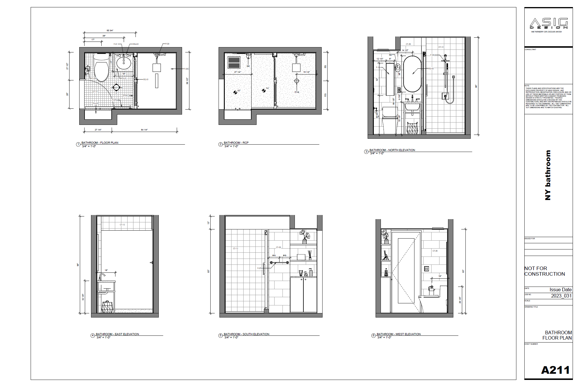
small full bathroom remodel

style: Eclectic (A mix of different styles, periods, and textures, unified by a common theme or color palette)

budget under $15,000

PROJECT DESCRIPTION

PDF DELIVERABLE

360 PANORAMIC VIEW

 

Previous
Previous

18 Emmons Canyon